LEED-NC Gold Certified














LEED NC v2.1 Gold Certified
New Construction
27,000 SF
$3.2 Million
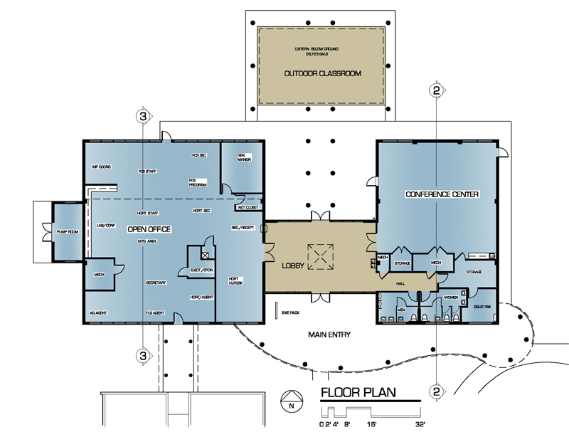
The Twin Lakes Park Office complex is a LEED NC Gold Certified Building designed for the Sarasota County Government and was the highest scoring LEED NC v2.0 Building in Florida until 2009. The facility won the 2003 SUSTAINABLE FLORIDA / FLORIDA AMERICAN INSTITUTE OF ARCHITECTS AWARD OF MERIT. The project demonstrates energy conservation by using 45% less energy than a new, code compliant building. This is accomplished through sustainable features such as the use of natural daylight, sophisticated lighting control systems, a building energy management system and a high performance building envelope. The Twin Lakes project demonstrates water conservation by using 58% less water than a new, code compliant building. Water conservation features include low fl ow fixtures, water-less urinals and a 28,000 gallon cistern. The project saves energy resources through the use of a geothermal cooling system and a roof mounted 10 KW photo voltaic (PV) array.
