We are currently developing designs for small homes constructed of shipping containers, ranging in size from 320 SF to 552 SF. These can be stand along homes or serve as an ADU (accessory dwelling unit) and sit in the back yard of an existing single family lot. The City of Seattle recent implemented zoning to allow ADUs on may lots in the city. Learn more about ADUs in Seattle HERE. See 4 model ideas below. These are intended to be modest and cost effect affordable housing.
Model B, Two containers stacked, steep stair, 320 SF plus decks and porches






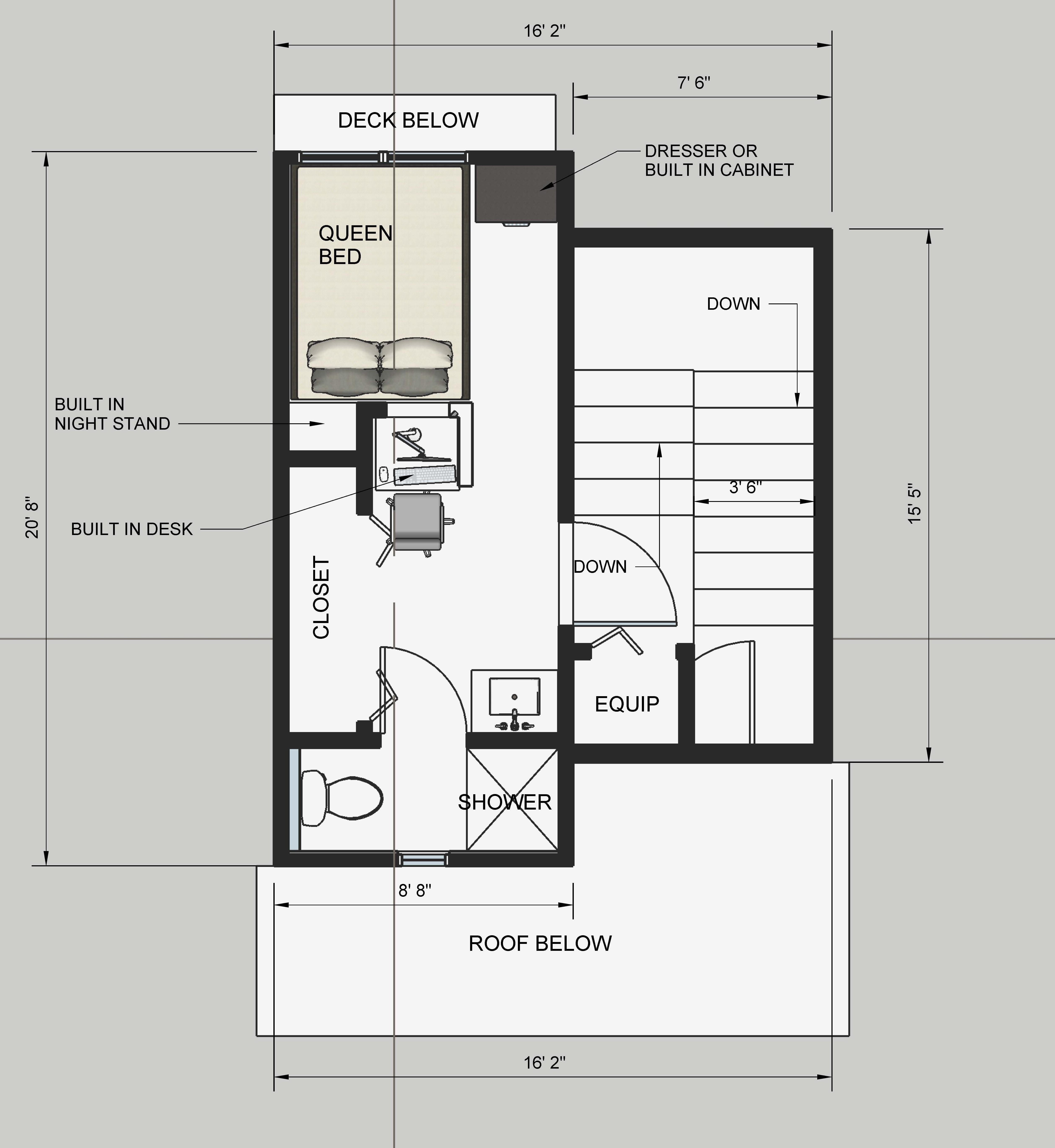
Model C, Two 20′ containers stacked, with full size stair, 2 story, 552 SF plus decks and porches








Model D, Two containers, circular stair, 408 SF, plus decks and porches






Model E, One 40 ft container, One story, 320 SF







